4階は現在募集がありません
PMO八丁堀Ⅲ 4階
物件概要
PMO八丁堀Ⅲのテナント募集中区画
現在、空室がございません。
アクセス
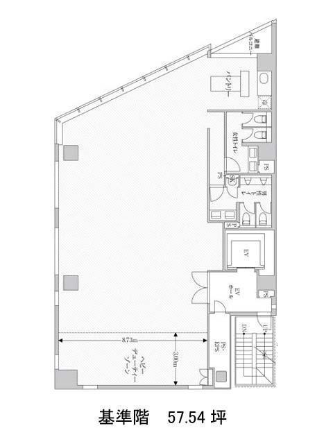
PMO八丁堀Ⅲの物件情報
PMO八丁堀Ⅲ(中央区八丁堀)は八丁堀駅(A3番出口)から徒歩2分の賃貸オフィスです。地上10階建てで竣工2018年の物件ということもあり、上層階からの眺望は良好で、建物自体もとても綺麗です。外観は全体的にブラックを基調としており、前面ガラス張りになっているため、とてもスタイリッシュな印象があります。エントランスホールもとても広々としており、清潔感と開放感があります。また周辺には、コンビニや飲食店などが複数あるためとても利便性が高いです。ビル内にはOAフロアが備えられており、トイレは男女別となっております。PMO八丁堀Ⅲは八丁堀駅(A3番出口)の他に宝町駅(A2番出口)徒歩6分、茅場町駅(2番出口)徒歩7分で利用も可能です。

