PMO八丁堀Ⅲ 7階
物件概要
PMO八丁堀Ⅲのテナント募集中区画
| 階数 | 面積 | 賃料(共益費含む) | 保証金 | 入居可能日 | 検討リスト | 詳細 |
|---|---|---|---|---|---|---|
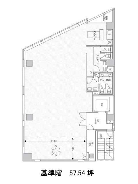
| 7 | 57.54坪 | 応相談(応相談) | 応相談 | 2026年8月上旬 |
…新着物件
PMO八丁堀Ⅲのアクセス
PMO八丁堀Ⅲの物件情報
PMO八丁堀Ⅲ(中央区八丁堀)は八丁堀駅(A3番出口)から徒歩2分の賃貸オフィスです。地上10階建てで竣工2018年の物件ということもあり、上層階からの眺望は良好で、建物自体もとても綺麗です。外観は全体的にブラックを基調としており、前面ガラス張りになっているため、とてもスタイリッシュな印象があります。エントランスホールもとても広々としており、清潔感と開放感があります。また周辺には、コンビニや飲食店などが複数あるためとても利便性が高いです。ビル内にはOAフロアが備えられており、トイレは男女別となっております。PMO八丁堀Ⅲは八丁堀駅(A3番出口)の他に宝町駅(A2番出口)徒歩6分、茅場町駅(2番出口)徒歩7分で利用も可能です。

