東京NSビル 2階
物件概要
物件番号
665-00378-4物件名
東京NSビル所在地
- 東京都中央区八丁堀2-29-4
- アクセスマップ
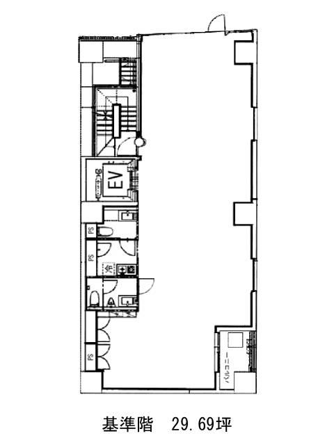
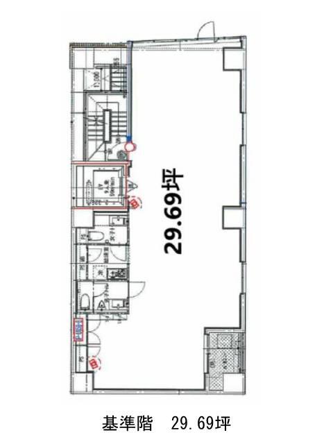
面積
29.69坪賃料(共益費含)
月額620,521円(20,900円/坪)
入居日
即保証金
2,256,440円礼金
なし更新料
新1ケ月償却費
1ケ月竣工
2024年3月構造
RC規模
地上7階トイレ
男女別空調
個別空調エレベーター
有セキュリティ
有駐車場
無耐震
新耐震基準基準階天井高
2700mm空室延床面積
89.07坪情報更新日
2025/12/04東京NSビルのテナント募集中区画
| 階数 | 面積 | 賃料(共益費含む) | 保証金 | 入居可能日 | 検討リスト | 詳細 |
|---|---|---|---|---|---|---|
| 2 | 29.69坪 | 620,521円/月(20,900円/坪) | 225万円 | 即 | ||
| 3 | 29.69坪 | 620,521円/月(20,900円/坪) | 225万円 | 即 | ||
| 4 | 29.69坪 | 620,521円/月(20,900円/坪) | 225万円 | 即 |
…新着物件
アクセス
東京NSビルの物件情報
東京NSビル(中央区八丁堀)は八丁堀駅(A4番出口)から徒歩2分の賃貸オフィスです。東京NSビルは八丁堀駅(A4番出口)の他に茅場町駅(1番出口)徒歩6分、宝町駅(A8番出口)徒歩10分で利用も可能です。

