owns八丁堀 11階
物件概要
物件番号
665-00380-9物件名
owns八丁堀所在地
- 東京都中央区八丁堀3-20-4
- アクセスマップ
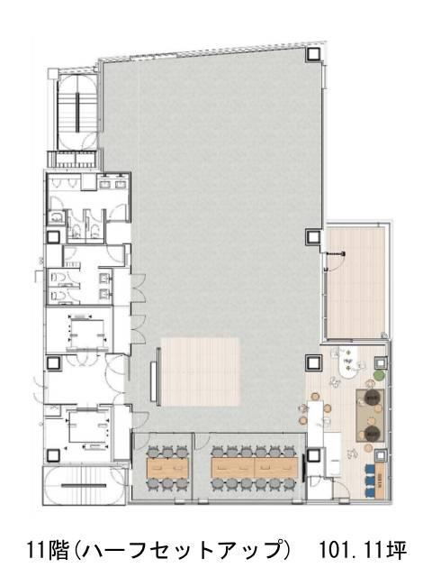
面積
101.08坪賃料(共益費含)
:応相談応相談
入居日
2025年12月保証金
応相談礼金
なし更新料
なし償却費
なし竣工
2025年7月構造
S造規模
地上12階トイレ
男女別空調
個別空調エレベーター
有セキュリティ
有駐車場
有耐震
新耐震基準基準階天井高
3400mm空室延床面積
888.79坪情報更新日
2025/12/12owns八丁堀のテナント募集中区画
…新着物件
アクセス
owns八丁堀の物件情報
owns八丁堀(中央区八丁堀)は八丁堀駅(A5b番出口)から徒歩2分の賃貸オフィスです。2025年竣工、地上12階建てS造の新築ビルです。ワンフロアワンテナントでの貸し出しとなり、プライバシー性の高い執務ができるでしょう。基準階面積は約101坪。設備仕様として、EV・空調・男女別トイレがそろいます。都道50号沿いに建ち、近隣は中層階のオフィスビルが多く建ち並ぶエリアです。街路樹が生い茂る前面道路は無電柱化されており、快適にアクセスできるでしょう。周辺にコンビニや飲食店があり、ランチに便利でしょう。owns八丁堀は八丁堀駅(A5b番出口)の他に茅場町駅(2番出口)徒歩6分、宝町駅(A2番出口)徒歩7分で利用も可能です。

