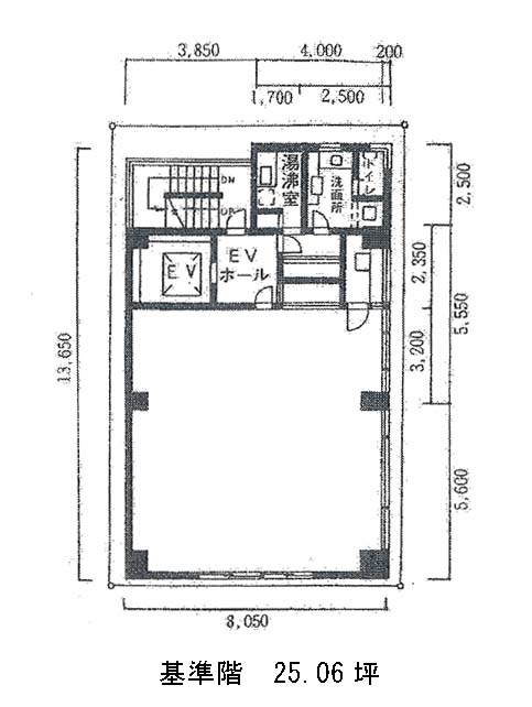
KSビル 5階
物件概要
KSビルのテナント募集中区画
| 階数 | 面積 | 賃料(共益費含む) | 保証金 | 入居可能日 | 検討リスト | 詳細 |
|---|---|---|---|---|---|---|
| 5 | 25.06坪 | 385,924円/月(15,400円/坪) | 300万円 | 即 |
…新着物件
KSビルのアクセス
KSビルの物件情報
KSビル(中央区八丁堀)は宝町駅(A8番出口)から徒歩4分の賃貸オフィスです。KSビルは宝町駅(A8番出口)の他に八丁堀駅(A3番出口)徒歩4分、京橋駅(4番出口)徒歩7分で利用も可能です。

