塩部ビルディング 2階
物件概要
物件番号
665-00068-10物件名
塩部ビルディング所在地
- 東京都中央区八丁堀4-9-6
- アクセスマップ
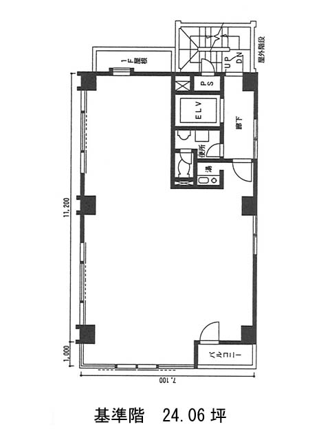
面積
24.06坪賃料(共益費含)
月額396,990円(16,500円/坪)
入居日
即保証金
1,804,500円礼金
1ケ月更新料
新1ケ月償却費
2ケ月竣工
1981年4月構造
SRC規模
地上10階トイレ
男女共用空調
個別空調エレベーター
有セキュリティ
有駐車場
無耐震
耐震補強済み基準階天井高
空室延床面積
50.66坪情報更新日
2026/03/06塩部ビルディングのテナント募集中区画
| 階数 | 面積 | 賃料(共益費含む) | 保証金 | 入居可能日 | 検討リスト | 詳細 |
|---|---|---|---|---|---|---|
| 2 | 24.06坪 | 396,990円/月(16,500円/坪) | 180万円 | 即 | ||
| 6 | 26.60坪 | 438,900円/月(16,500円/坪) | 199万円 | 相談 |
…新着物件
塩部ビルディングのアクセス
塩部ビルディングの物件情報
塩部ビルディング(中央区八丁堀)は八丁堀駅(B3番出口)から徒歩2分の賃貸オフィスです。塩部ビルディングは八丁堀駅(B3番出口)の他に茅場町駅(1番出口)徒歩8分、新富町駅(7番出口)徒歩8分で利用も可能です。

