塩部ビルディングのテナント募集中区画
| 階数 | 面積 | 賃料(共益費含む) | 保証金 | 入居可能日 | 検討リスト | 詳細 |
|---|---|---|---|---|---|---|
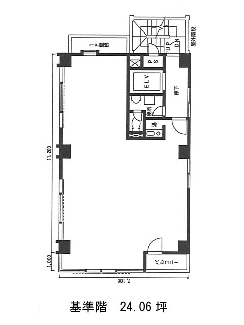
| 2 | 24.06坪 | 396,990円/月(16,500円/坪) | 180万円 | 即 | ||
| 6 | 26.60坪 | 438,900円/月(16,500円/坪) | 199万円 | 即 |
…新着物件
アクセス
塩部ビルディングの物件情報
塩部ビルディング(中央区八丁堀)は八丁堀駅(B3番出口)から徒歩2分の賃貸オフィスです。塩部ビルディングは八丁堀駅(B3番出口)の他に茅場町駅(1番出口)徒歩8分、新富町駅(7番出口)徒歩8分で利用も可能です。

