IXOSビル 9階
物件概要
物件番号
668-00003-41物件名
IXOSビル所在地
- 東京都中央区湊2-12-11
- アクセスマップ
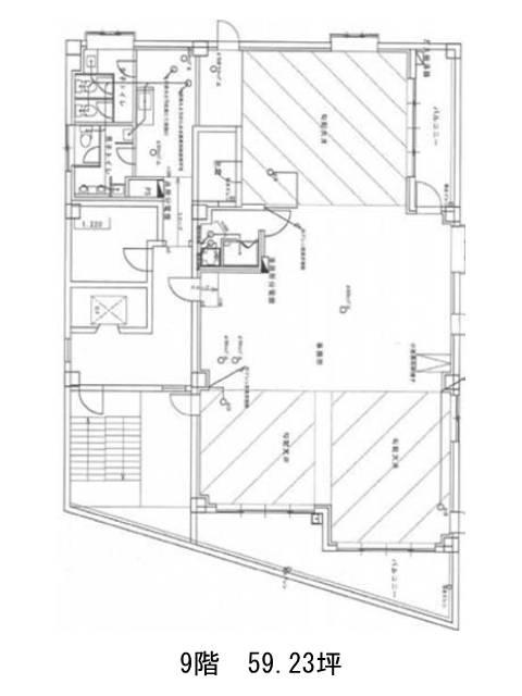
面積
59.23坪賃料(共益費含)
月額912,142円(15,400円/坪)
入居日
即保証金
4,975,320円礼金
なし更新料
新1ケ月償却費
なし竣工
1990年5月構造
SRC規模
地上9階トイレ
男女別空調
個別空調エレベーター
有セキュリティ
有駐車場
有耐震
新耐震基準基準階天井高
2400mm空室延床面積
59.23坪情報更新日
2026/02/26IXOSビルのテナント募集中区画
| 階数 | 面積 | 賃料(共益費含む) | 保証金 | 入居可能日 | 検討リスト | 詳細 |
|---|---|---|---|---|---|---|
| 9 | 59.23坪 | 912,142円/月(15,400円/坪) | 497万円 | 即 |
…新着物件
IXOSビルのアクセス
IXOSビルの物件情報
IXOSビル(中央区湊)は新富町駅(7番出口)から徒歩7分の賃貸オフィスです。外観はベージュのタイル張りになっており、とてもシンプルな構造になっております。また周辺には、コンビニや飲食店などが複数あるためとても利便性が高いです。ビル内のトイレは男女別となっており、駐車場もあるため、社用車を使う場合も便利です。また室内にはバルコニーも付いているので、休憩時などに活用しやすいでしょう。基準階は約60坪あり、室内はほぼ長方形の形をしているため、比較的レイアウトは組みやすいでしょう。IXOSビルは新富町駅(7番出口)の他に八丁堀駅(B4番出口)徒歩8分、築地駅(3番出口)徒歩11分で利用も可能です。

