SDI五反田ビル 3階
物件概要
物件番号
754-00111-20物件名
SDI五反田ビル所在地
- 東京都品川区西五反田7-13-6
- アクセスマップ
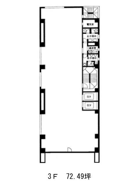
面積
72.49坪賃料(共益費含)
月額1,116,379円(15,401円/坪)
入居日
即保証金
5,219,715円礼金
1ケ月更新料
なし償却費
なし竣工
1990年6月構造
SRC規模
地上10階トイレ
男女別空調
個別空調エレベーター
有セキュリティ
駐車場
有耐震
新耐震基準基準階天井高
2500mm空室延床面積
72.49坪情報更新日
2025/12/03SDI五反田ビルのテナント募集中区画
| 階数 | 面積 | 賃料(共益費含む) | 保証金 | 入居可能日 | 検討リスト | 詳細 |
|---|---|---|---|---|---|---|
| 3 | 72.49坪 | 1,116,379円/月(15,401円/坪) | 521万円 | 即 |
…新着物件
SDI五反田ビルのアクセス
SDI五反田ビルの物件情報
SDI五反田ビル(品川区西五反田)は大崎広小路駅(出口)から徒歩6分の賃貸オフィスです。1990年竣工、地上10階建SRC造のビルです。低層階は大きな窓が並び、上層階はミラーガラスが輝いています。外階段があり、目印としてわかりやすいでしょう。貸室は100坪以下の中規模なものがそろいます。長方形のオフィスは共用部が片側に集まり、動線がよいでしょう。EV2基・駐車場・給湯スペース・個別空調・OAフロア・貸室外の男女別トイレといった設備仕様があります。水まわり等の共用部は白を基調とした清潔感のある内装をしています。SDI五反田ビルは大崎広小路駅(出口)の他に五反田駅(A2番出口)徒歩8分、不動前駅(出口)徒歩12分で利用も可能です。

