10階は現在募集がありません
1フロア募集区画あり

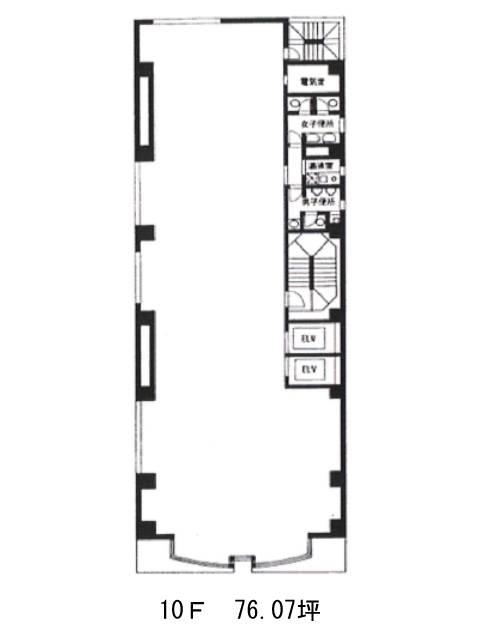
SDI五反田ビル 10階

前の写真 次の写真

物件概要

物件番号

754-00111-90

物件名

SDI五反田ビル

所在地

面積

76.07坪

賃料(共益費含)


入居日

募集終了

保証金

礼金

更新料

償却費

竣工

1990年6月

構造

SRC

規模

地上10階

トイレ

男女別

空調

個別空調

エレベーター

セキュリティ

駐車場

耐震

新耐震基準

基準階天井高

2500mm

空室延床面積

72.49坪

最寄駅

情報更新日

2026/03/17

SDI五反田ビルのテナント募集中区画

階数 面積 賃料(共益費含む) 保証金 入居可能日 検討リスト 詳細
3 72.49坪 1,116,379円/月(15,401円/坪) 521万円
…新着物件

SDI五反田ビルのアクセス

SDI五反田ビルの物件情報

SDI五反田ビル(品川区西五反田)は大崎広小路駅(出口)から徒歩6分の賃貸オフィスです。
1990年竣工、地上10階建SRC造のビルです。低層階は大きな窓が並び、上層階はミラーガラスが輝いています。外階段があり、目印としてわかりやすいでしょう。貸室は100坪以下の中規模なものがそろいます。長方形のオフィスは共用部が片側に集まり、動線がよいでしょう。EV2基・駐車場・給湯スペース・個別空調・OAフロア・貸室外の男女別トイレといった設備仕様があります。水まわり等の共用部は白を基調とした清潔感のある内装をしています。
SDI五反田ビルは大崎広小路駅(出口)の他に五反田駅(A2番出口)徒歩8分、不動前駅(出口)徒歩12分で利用も可能です。

近隣のエリア・駅から探す