第3花田ビル 3階新着
物件概要
物件番号
754-00206-51物件名
第3花田ビル所在地
- 東京都品川区西五反田7-15-4
- アクセスマップ
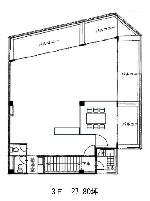
面積
27.80坪賃料(共益費含)
月額654,640円(23,549円/坪)
入居日
2026年4月中旬保証金
3,124,498円礼金
なし更新料
なし償却費
なし竣工
1970年12月構造
RC規模
地上4階トイレ
不明空調
個別空調エレベーター
無セキュリティ
駐車場
無耐震
旧耐震基準基準階天井高
2350mm空室延床面積
55.60坪情報更新日
2026/02/26第3花田ビルのテナント募集中区画
| 階数 | 面積 | 賃料(共益費含む) | 保証金 | 入居可能日 | 検討リスト | 詳細 |
|---|---|---|---|---|---|---|
| 3 | 27.80坪 | 654,640円/月(23,549円/坪) | 312万円 | 2026年4月中旬 | ||
| 4 | 27.80坪 | 428,120円/月(15,400円/坪) | 200万円 | 即 |
…新着物件
第3花田ビルのアクセス
第3花田ビルの物件情報
第3花田ビル(品川区西五反田)は大崎広小路駅(出口)から徒歩6分の賃貸オフィスです。第3花田ビルは大崎広小路駅(出口)の他に五反田駅(A2番出口)徒歩7分、不動前駅(出口)徒歩11分で利用も可能です。

