7階は現在募集がありません
サン池袋Ⅱ 7階
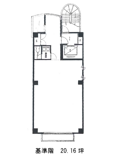
物件概要
サン池袋Ⅱのテナント募集中区画
現在、空室がございません。
サン池袋Ⅱのアクセス
サン池袋Ⅱの物件情報
サン池袋Ⅱ(豊島区池袋)は要町駅(5番出口)から徒歩5分の賃貸オフィスです。サン池袋Ⅱは要町駅(5番出口)の他に池袋駅(C1番出口)徒歩5分で利用も可能です。

