タカセビル別館 2階
物件概要
物件番号
805-00174-10物件名
タカセビル別館所在地
- 東京都豊島区東池袋1-25-9
- アクセスマップ
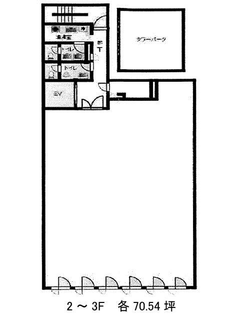
面積
70.54坪賃料(共益費含)
月額1,334,616円(18,920円/坪)
入居日
2026年1月上旬保証金
10,581,000円礼金
なし更新料
なし償却費
なし竣工
1983年5月構造
SRC規模
地上9階/地下1階トイレ
男女別空調
セントラルエレベーター
有セキュリティ
有駐車場
有耐震
新耐震基準基準階天井高
2550mm空室延床面積
70.54坪情報更新日
2025/12/01タカセビル別館のテナント募集中区画
| 階数 | 面積 | 賃料(共益費含む) | 保証金 | 入居可能日 | 検討リスト | 詳細 |
|---|---|---|---|---|---|---|
| 2 | 70.54坪 | 1,334,616円/月(18,920円/坪) | 1,058万円 | 2026年1月上旬 |
…新着物件
アクセス
タカセビル別館の物件情報
タカセビル別館(豊島区東池袋)は東池袋駅(1番出口)から徒歩5分の賃貸オフィスです。1983年竣工、地上9階建て、外観は白を基調としたシンプルなデザインに茶色のタイル張りが融合されている特徴のあるビルです。徒歩圏内にコンビニや飲食店、周辺には商業施設などがあり、利便性が高いです。基準階は約70坪、室内は長方形の整形オフィスでお好みに合わせたレイアウトを組むことが可能でしょう。エレベーターは1基、駐車場完備のため、社用車を利用される場合は便利です。新耐震基準を満たしているため、耐震性も安心です。タカセビル別館は東池袋駅(1番出口)の他に池袋駅(39番出口)徒歩5分、東池袋四丁目駅(停留所)徒歩8分で利用も可能です。

