3階は現在募集がありません
1フロア募集区画あり

錦糸町ミハマビル 3階

前の写真 次の写真

物件概要

物件番号

852-00005-20

物件名

錦糸町ミハマビル

所在地

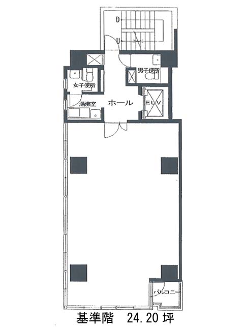
面積

24.20坪

賃料(共益費含)


入居日

募集終了

保証金

礼金

更新料

償却費

竣工

1984年11月

構造

SRC

規模

地上9階

トイレ

男女別

空調

個別空調

エレベーター

セキュリティ

駐車場

耐震

新耐震基準

基準階天井高

空室延床面積

23.15坪

最寄駅

情報更新日

2026/05/13

錦糸町ミハマビルのテナント募集中区画

階数 面積 賃料(共益費含む) 保証金 入居可能日 検討リスト 詳細
6 23.15坪 356,510円/月(15,400円/坪) 203万円 2026年10月中旬
…新着物件

錦糸町ミハマビルのアクセス

錦糸町ミハマビルの物件情報

錦糸町ミハマビル(墨田区江東橋)は錦糸町駅(出口1)から徒歩3分の賃貸オフィスです。
錦糸町ミハマビルは錦糸町駅(出口1)の他に住吉駅(B2番出口)徒歩8分で利用も可能です。

近隣のエリア・駅から探す