オカバ錦糸町ビルⅡ 3階新着
物件概要
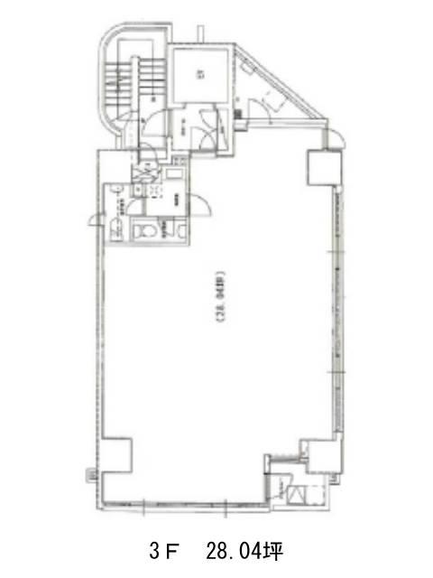
オカバ錦糸町ビルⅡのテナント募集中区画
| 階数 | 面積 | 賃料(共益費含む) | 保証金 | 入居可能日 | 検討リスト | 詳細 |
|---|---|---|---|---|---|---|
| 3 | 28.04坪 | 370,128円/月(13,200円/坪) | 274万円 | 2026年9月中旬 |
…新着物件
オカバ錦糸町ビルⅡのアクセス
オカバ錦糸町ビルⅡの物件情報
オカバ錦糸町ビルⅡ(墨田区江東橋)は錦糸町駅(出口1)から徒歩5分の賃貸オフィスです。オカバ錦糸町ビルⅡは錦糸町駅(出口1)の他に住吉駅(B2番出口)徒歩11分、亀戸駅(北口)徒歩12分で利用も可能です。

