市川ビル 2階
物件概要
物件番号
865-00034-10物件名
市川ビル所在地
- 東京都墨田区立川3-10-1
- アクセスマップ
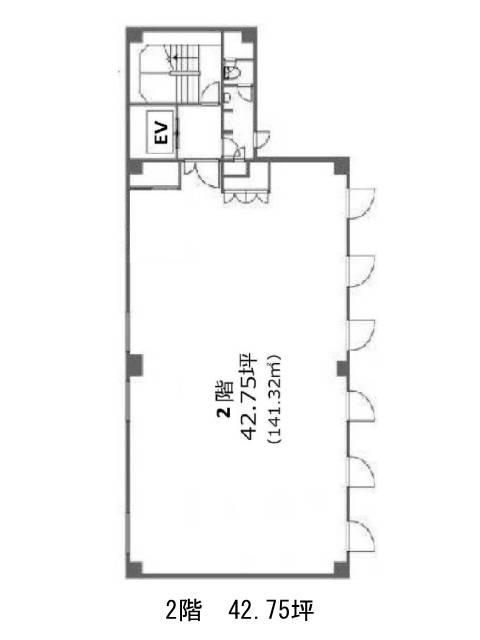
面積
42.75坪賃料(共益費含)
月額442,200円(10,344円/坪)
入居日
2026年3月中旬保証金
1,368,000円礼金
1ケ月更新料
新1ケ月償却費
1ケ月竣工
1987年8月構造
S造規模
地上4階トイレ
男女共用空調
個別空調エレベーター
有セキュリティ
駐車場
有耐震
新耐震基準基準階天井高
2500mm空室延床面積
42.75坪情報更新日
2026/02/04市川ビルのテナント募集中区画
| 階数 | 面積 | 賃料(共益費含む) | 保証金 | 入居可能日 | 検討リスト | 詳細 |
|---|---|---|---|---|---|---|
| 2 | 42.75坪 | 442,200円/月(10,344円/坪) | 136万円 | 2026年3月中旬 |
…新着物件
市川ビルのアクセス
市川ビルの物件情報
市川ビル(墨田区立川)は菊川駅(A3番出口)から徒歩6分の賃貸オフィスです。市川ビルは菊川駅(A3番出口)の他に森下駅(A5番出口)徒歩11分、両国駅(A5番出口)徒歩14分で利用も可能です。

