9階は現在募集がありません
ヒューリック両国ビル 9階
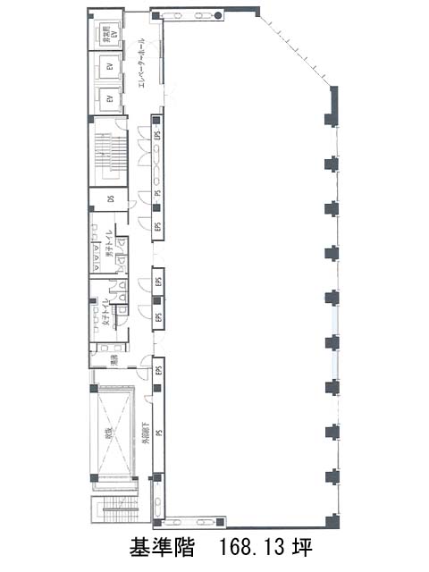
物件概要
ヒューリック両国ビルのテナント募集中区画
現在、空室がございません。
アクセス
ヒューリック両国ビルの物件情報
ヒューリック両国ビル(墨田区両国)は両国駅(A5番出口)から徒歩1分の賃貸オフィスです。ヒューリック両国ビルは両国駅(A5番出口)の他に森下駅(A5番出口)徒歩10分で利用も可能です。

