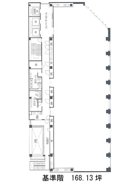
ヒューリック両国ビル 5階
物件概要
ヒューリック両国ビルのテナント募集中区画
| 階数 | 面積 | 賃料(共益費含む) | 保証金 | 入居可能日 | 検討リスト | 詳細 |
|---|---|---|---|---|---|---|
| 5 | 168.13坪 | 応相談(応相談) | 応相談 | 即 |
…新着物件
ヒューリック両国ビルのアクセス
ヒューリック両国ビルの物件情報
ヒューリック両国ビル(墨田区両国)は両国駅(A5番出口)から徒歩1分の賃貸オフィスです。ヒューリック両国ビルは両国駅(A5番出口)の他に森下駅(A5番出口)徒歩10分で利用も可能です。

