4階 401は現在募集がありません
2フロア募集区画あり

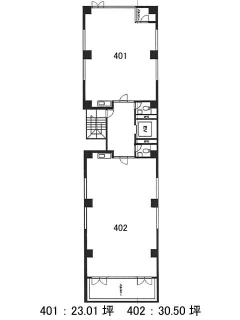
中尾ビル 4階 401

前の写真 次の写真

物件概要

物件番号

866-00210-5

物件名

中尾ビル

所在地

面積

23.01坪

賃料(共益費含)


入居日

募集終了

保証金

礼金

更新料

償却費

竣工

1985年5月

構造

SRC

規模

地上7階

トイレ

男女別

空調

個別空調

エレベーター

セキュリティ

駐車場

耐震

新耐震基準

基準階天井高

空室延床面積

80.21坪

最寄駅

情報更新日

2026/01/16

中尾ビルのテナント募集中区画

階数 面積 賃料(共益費含む) 保証金 入居可能日 検討リスト 詳細
2 56.99坪 752,268円/月(13,200円/坪) 547万円
5 23.22坪 306,504円/月(13,200円/坪) 222万円 2026年1月下旬
…新着物件

アクセス

中尾ビルの物件情報

中尾ビル(墨田区両国)は両国駅(西口)から徒歩2分の賃貸オフィスです。
国技館通りから少し入った場所にあるこちらのビルは、1985年竣工、新耐震基準に適合する7階建ての鉄骨鉄筋コンクリート造です。外観は白い外壁に1階部分のアーチ状の庇が特徴的ですので、来訪時の目印になりそうです。室内は奥行きのある無柱空間で、貸室の中央にエレベーター、男女別トイレ、階段があり中央が狭くなっているため、置くと手前で執務スペースを区切りやすい形です。空調は個別空調、セキュリティは機械警備を導入しています。ビルのすぐ近くにコンビニが有り、老舗の飲食店や洒落なカフェが徒歩圏内に充実していますので、食事にも困らないでしょう。
中尾ビルは両国駅(西口)の他に馬喰町駅(5番出口)徒歩11分、浅草橋駅(A1番出口)徒歩12分で利用も可能です。

近隣のエリア・駅から探す