中尾ビルのテナント募集中区画
| 階数 | 面積 | 賃料(共益費含む) | 保証金 | 入居可能日 | 検討リスト | 詳細 |
|---|---|---|---|---|---|---|
| 2 | 56.99坪 | 752,268円/月(13,200円/坪) | 547万円 | 即 | ||
| 5 | 23.22坪 | 306,504円/月(13,200円/坪) | 222万円 | 2026年1月下旬 |
…新着物件
アクセス
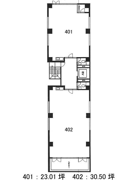
中尾ビルの物件情報
中尾ビル(墨田区両国)は両国駅(西口)から徒歩2分の賃貸オフィスです。国技館通りから少し入った場所にあるこちらのビルは、1985年竣工、新耐震基準に適合する7階建ての鉄骨鉄筋コンクリート造です。外観は白い外壁に1階部分のアーチ状の庇が特徴的ですので、来訪時の目印になりそうです。室内は奥行きのある無柱空間で、貸室の中央にエレベーター、男女別トイレ、階段があり中央が狭くなっているため、置くと手前で執務スペースを区切りやすい形です。空調は個別空調、セキュリティは機械警備を導入しています。ビルのすぐ近くにコンビニが有り、老舗の飲食店や洒落なカフェが徒歩圏内に充実していますので、食事にも困らないでしょう。中尾ビルは両国駅(西口)の他に馬喰町駅(5番出口)徒歩11分、浅草橋駅(A1番出口)徒歩12分で利用も可能です。

