MYSビルのテナント募集中区画
| 階数 | 面積 | 賃料(共益費含む) | 保証金 | 入居可能日 | 検討リスト | 詳細 |
|---|---|---|---|---|---|---|
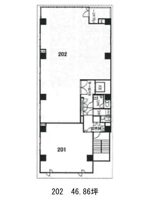
| 3 | 26.60坪 | 応相談(応相談) | 応相談 | 2026年5月上旬 |
…新着物件
アクセス
MYSビルの物件情報
MYSビル(墨田区両国)は両国駅(東口)から徒歩6分の賃貸オフィスです。1993年竣工、地上6階建てのビルです。濃いグレーの外壁で、重厚感のある外観をしています。共用部もグレーの石張りで、高級感が漂います。設備仕様として、EV1基・個別空調がそろいます。セキュリティとして安心の機械警備が導入されています。貸室内に支柱がとびでていない為、デスク等のレイアウトがしやすいでしょう。周辺は低~中層階のビルや住宅が建ち並ぶ、落ち着いた雰囲気のエリアです。近隣にコンビニや郵便局があり普段使いにご利用頂けるでしょう。MYSビルは両国駅(東口)の他に森下駅(A2番出口)徒歩9分で利用も可能です。

