2階は現在募集がありません
1フロア募集区画あり

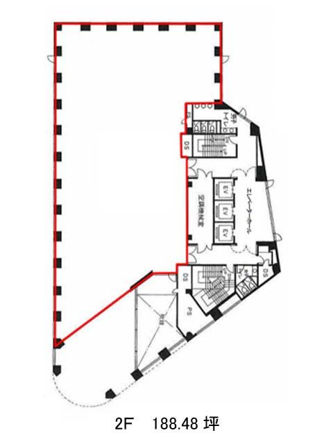
シモモトビル 2階

前の写真 次の写真

物件概要

物件番号

167-00007-60

物件名

シモモトビル

所在地

面積

188.48坪

賃料(共益費含)


入居日

募集終了

保証金

礼金

更新料

償却費

竣工

1992年11月

構造

SRC

規模

地上10階/地下2階

トイレ

男女別

空調

個別空調

エレベーター

セキュリティ

駐車場

耐震

新耐震基準

基準階天井高

2600mm

空室延床面積

102.86坪

最寄駅

情報更新日

2026/04/06

シモモトビルのテナント募集中区画

階数 面積 賃料(共益費含む) 保証金 入居可能日 検討リスト 詳細
10 102.86坪 応相談(応相談) 応相談 2026年6月上旬
…新着物件

シモモトビルのアクセス

シモモトビルの物件情報

シモモトビル(渋谷区初台)は初台駅(出口1)から徒歩3分の賃貸オフィスです。
1992年竣工の地上10階建て。初台交差点付近、山手通り沿いの角地にあります。外観はグレーの石彫でクラシックな重厚感があり、立地やその規模も相まって強い存在感を放ちます。吹き抜けの明るいエントランスには、エレベーター3基を備えています。貸室はレイアウトのしやすい無柱空間で、天井まで覆う窓が多数設置されていますので、採光や眺望も期待できます。男女別トイレは室外に設置され、セントラル空調、OAフロアを完備している他、喫煙スペースや併設駐車場等、オフィスワークに嬉しい設備が整っています。セキュリティはカード式の機械警備と有人警備の併用で万全です。周辺にはコンビニや飲食店が多くあります。また隣の玉川上水緑道を通れば初台駅からの通勤も快適でしょう。
シモモトビルは初台駅(出口1)の他に参宮橋駅(出口2)徒歩11分、新宿駅(8番出口)徒歩14分で利用も可能です。

近隣のエリア・駅から探す