代々木TRビル 3階
物件概要
物件番号
175-00222-30物件名
代々木TRビル所在地
- 東京都渋谷区千駄ヶ谷4-30-3
- アクセスマップ
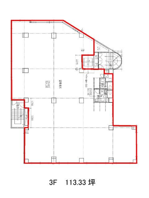
面積
113.33坪賃料(共益費含)
:応相談応相談
入居日
2025年12月上旬保証金
応相談礼金
なし更新料
なし償却費
1ケ月竣工
1986年10月構造
SRC規模
地上7階/地下1階トイレ
男女別空調
個別空調エレベーター
有セキュリティ
駐車場
無耐震
新耐震基準基準階天井高
空室延床面積
113.33坪情報更新日
2025/11/04代々木TRビルのテナント募集中区画
| 階数 | 面積 | 賃料(共益費含む) | 保証金 | 入居可能日 | 検討リスト | 詳細 |
|---|---|---|---|---|---|---|
| 3 | 113.33坪 | 応相談(応相談) | 応相談 | 2025年12月上旬 |
…新着物件
アクセス
代々木TRビルの物件情報
代々木TRビル(渋谷区千駄ヶ谷)は代々木駅(西口)から徒歩3分の賃貸オフィスです。代々木TRビルは代々木駅(西口)の他に北参道駅(1番出口)徒歩5分、南新宿駅(出口)徒歩8分で利用も可能です。

