プライム千駄ヶ谷ビル 2階
物件概要
物件番号
175-00441-30物件名
プライム千駄ヶ谷ビル所在地
- 東京都渋谷区千駄ヶ谷4-23-5
- アクセスマップ
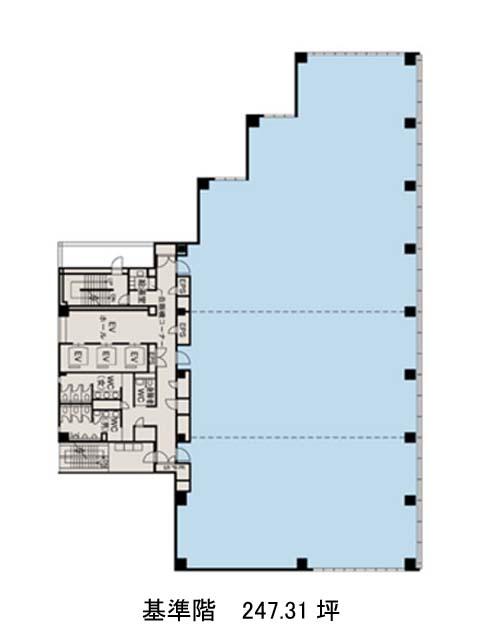
面積
247.31坪賃料(共益費含)
−入居日
募集終了保証金
−礼金
−更新料
−償却費
−竣工
2009年5月構造
S造規模
地上8階トイレ
男女別空調
個別(空冷ヒートポンプ型)エレベーター
有セキュリティ
有駐車場
有耐震
新耐震基準基準階天井高
2800mm空室延床面積
357.51坪情報更新日
2025/12/01プライム千駄ヶ谷ビルのテナント募集中区画
| 階数 | 面積 | 賃料(共益費含む) | 保証金 | 入居可能日 | 検討リスト | 詳細 |
|---|---|---|---|---|---|---|
| 3 | 110.20坪 | 応相談(応相談) | 応相談 | 即 | ||
| 3 | 71.73坪 | 応相談(応相談) | 応相談 | 即 | ||
| 5 | 110.20坪 | 応相談(応相談) | 応相談 | 2026年5月上旬 | ||
| 5 | 65.38坪 | 応相談(応相談) | 応相談 | 2026年5月上旬 |
アクセス
プライム千駄ヶ谷ビルの物件情報
プライム千駄ヶ谷ビル(渋谷区千駄ヶ谷)は北参道駅(1番出口)から徒歩5分の賃貸オフィスです。北参道・千駄ヶ谷・国立競技場など複数駅に囲まれた交通利便性抜群の立地に佇む当ビルは、地上8階建て・2009年竣工の免震構造を備えたハイグレードオフィス物件です。
外観は全面ガラス張りを基調とした先進的なデザインで、通りに面した広いファサードと相まって視認性が非常に高く、洗練された企業イメージを打ち出す拠点としても好相性。ガラスの透明感と建物全体の直線的なフォルムは、来訪者にも強い印象を与える佇まいです。
基準階は約250坪の大規模区画を確保しており、天井高2,800mmの開放感ある執務空間を実現。さらに、複数区画への分割貸しにも積極的に対応しているため、中規模〜大規模企業まで、利用用途や成長フェーズに応じた柔軟なレイアウト構築が可能です。「将来的に拡張も視野に入れたい」「チームごとの独立性を確保したい」といったニーズにもフィットします。
設備面では、OAフロア・個別空調・光ファイバー・男女別トイレをはじめ、ICカードによる入退室管理や機械警備によるセキュリティ体制も完備。駐車場(平置き+機械式)や喫煙ルームなど共用部も充実しており、利便性と快適性の両立を図った設計です。
「副都心×静けさ×アクセス」のバランスが取れた千駄ヶ谷エリアの中でも、視認性・スペックともに優れた立地は、企業ブランディングにも貢献。周辺にはカフェや郵便局も点在し、業務の合間にちょうど良い利便性を提供します。
渋谷区内で大型・高仕様・好立地オフィスをお探しの企業にとって、検討の価値が高い一棟です。プライム千駄ヶ谷ビルは北参道駅(1番出口)の他に千駄ヶ谷駅(出口)徒歩7分、国立競技場駅(A4番出口)徒歩7分で利用も可能です。

