2階は現在募集がありません
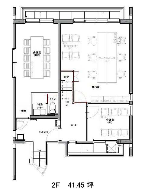
GrandStory千駄ヶ谷Ⅲ 2階
物件概要
GrandStory千駄ヶ谷Ⅲのテナント募集中区画
現在、空室がございません。
アクセス
GrandStory千駄ヶ谷Ⅲの物件情報
GrandStory千駄ヶ谷Ⅲ(渋谷区千駄ヶ谷)は北参道駅(2番出口)から徒歩6分の賃貸オフィスです。
GrandStory千駄ヶ谷Ⅲは北参道駅(2番出口)の他に国立競技場駅(A4番出口)徒歩9分、千駄ヶ谷駅(出口)徒歩9分で利用も可能です。

