4階は現在募集がありません
第16スカイビル 4階
物件概要
第16スカイビルのテナント募集中区画
現在、空室がございません。
アクセス
第16スカイビルの物件情報
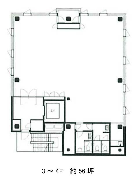
第16スカイビル(渋谷区千駄ヶ谷)は北参道駅(2番出口)から徒歩3分の賃貸オフィスです。明治通り沿いの角地に建つ、9階建てのビルです。千駄ヶ谷三丁目の交差点からすぐの立地です。2017年12月に建ったばかりの新しいビルです。茶色の壁と大きな窓の落ち着いた雰囲気の外観です。間取りは約30坪から57坪と複数あります。正方形の近い形状の部屋と、若干L字型になった部屋とがあります。3階以上は給湯設備と男女別トイレが設置されています。1階と2階は店舗向けにスケルトン仕様になっています。フローリングの床とダイレクトレール照明で、オシャレな室内です。西へ行くとすぐ明治神宮があり、東へ進むと神宮球場、北へ行き中央線を越えると新宿御苑という緑豊かな立地です。第16スカイビルは北参道駅(2番出口)の他に国立競技場駅(A4番出口)徒歩10分、千駄ヶ谷駅(出口)徒歩10分で利用も可能です。

