6階 6Aは現在募集がありません
フィールド北参道 6階 6A
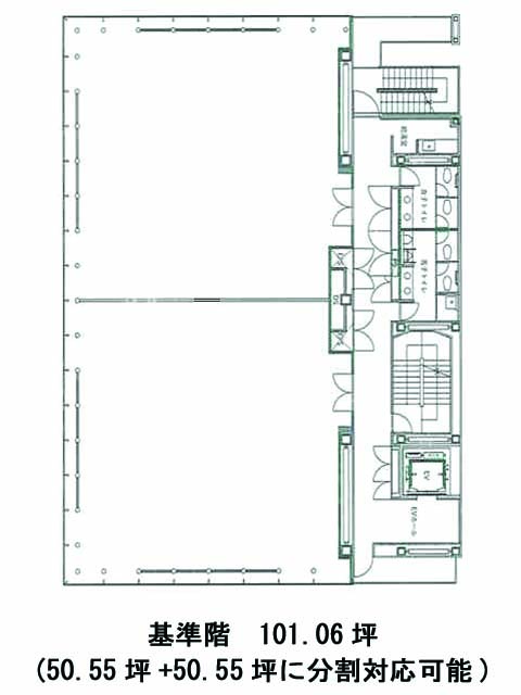
物件概要
フィールド北参道のテナント募集中区画
現在、空室がございません。
アクセス
フィールド北参道の物件情報
フィールド北参道(渋谷区千駄ヶ谷)は北参道駅(1番出口)から徒歩4分の賃貸オフィスです。
フィールド北参道は北参道駅(1番出口)の他に代々木駅(西口)徒歩6分、南新宿駅(出口)徒歩10分で利用も可能です。


