フィールド北参道のテナント募集中区画
| 階数 | 面積 | 賃料(共益費含む) | 保証金 | 入居可能日 | 検討リスト | 詳細 |
|---|---|---|---|---|---|---|
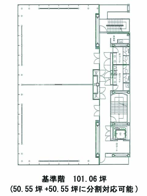
| 4 | 101.91坪 | 2,997,132円/月(29,409円/坪) | 3,269万円 | 2026年7月上旬 |
…新着物件
アクセス
フィールド北参道の物件情報
フィールド北参道(渋谷区千駄ヶ谷)は北参道駅(1番出口)から徒歩4分の賃貸オフィスです。フィールド北参道は北参道駅(1番出口)の他に代々木駅(西口)徒歩6分、南新宿駅(出口)徒歩10分で利用も可能です。

