4階は現在募集がありません
エディフィス代々木 4階
物件概要
エディフィス代々木のテナント募集中区画
現在、空室がございません。
エディフィス代々木のアクセス
エディフィス代々木の物件情報
エディフィス代々木(渋谷区代々木)は南新宿駅(出口)から徒歩4分の賃貸オフィスです。視認性の高い角地に建つ当ビルは、曲線を活かしたグレー基調の外観が特徴で、街並みに溶け込みつつも独自の存在感を放つデザイン性が魅力です。広めの階段アプローチと開放感あるエントランスホールが印象的で、来訪者に信頼感を与えるファサードも好印象。
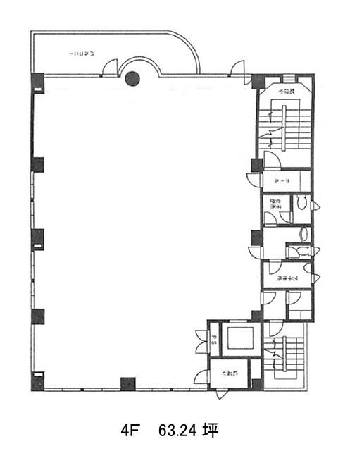
基準階は約68坪規模の整った区画。柱の少ない設計により、レイアウトの自由度が高く、執務空間を効率的に活用しやすい構造です。水回りが共用部に集約されている点も、快適なオフィス設計を実現するポイント。
OAフロア・個別空調・光ファイバー・男女別トイレなどの基本設備に加え、新耐震基準対応、エレベーター1基、敷地内駐車場も備えており、安心して長く利用できるインフラが整っています。エディフィス代々木は南新宿駅(出口)の他に新宿駅(8番出口)徒歩5分、代々木駅(北口)徒歩7分で利用も可能です。

