3階は現在募集がありません
1フロア募集区画あり

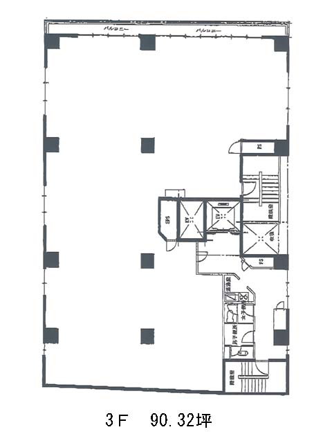
セントヒルズ代々木/内海ビル 3階

前の写真 次の写真

物件概要

物件番号

177-00242-20

物件名

セントヒルズ代々木/内海ビル

所在地

面積

90.32坪

賃料(共益費含)


入居日

募集終了

保証金

礼金

更新料

償却費

竣工

1982年10月

構造

SRC

規模

地上13階/地下1階

トイレ

男女別

空調

個別空調

エレベーター

セキュリティ

駐車場

耐震

確認中

基準階天井高

2590mm

空室延床面積

87.65坪

最寄駅

情報更新日

2026/01/29

セントヒルズ代々木/内海ビルのテナント募集中区画

階数 面積 賃料(共益費含む) 保証金 入居可能日 検討リスト 詳細
2 87.65坪 2,200,000円/月(25,100円/坪) 1,800万円
…新着物件

セントヒルズ代々木/内海ビルのアクセス

セントヒルズ代々木/内海ビルの物件情報

セントヒルズ代々木/内海ビル(渋谷区代々木)は代々木駅(A3番出口)から徒歩3分の賃貸オフィスです。
セントヒルズ代々木/内海ビルは代々木駅(A3番出口)の他に南新宿駅(出口)徒歩5分、新宿駅(A1番出口)徒歩5分で利用も可能です。

近隣のエリア・駅から探す