4階は現在募集がありません
フロンティア代々木 4階
物件概要
フロンティア代々木のテナント募集中区画
現在、空室がございません。
フロンティア代々木のアクセス
フロンティア代々木の物件情報
フロンティア代々木(渋谷区代々木)は代々木駅(A1番出口)から徒歩4分の賃貸オフィスです。周囲の建物とは一線を画す存在感を放つ当ビルは、直線を基調とした立体的な造形と、1階部分の開口が印象的なユニークな外観が特徴です。通り沿いでもひときわ目立つデザイン性の高さは、企業イメージの発信にも一役買ってくれそうです。
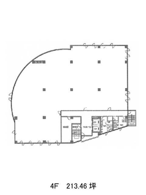
貸室は約213坪。執務空間は一部カーヴィで面白いレイアウトが組めそうです。トイレや給湯室はすべて貸室外に配置されており、執務空間をフルに活用できます。OAフロア・個別空調・光ファイバー・24時間利用・男女別トイレなど、快適な業務環境を支える基本設備も充実しています。
さらに、外構やエントランスのリニューアルが実施されており、共用部は清潔感と品のある印象にアップデート済み。駐車場やエレベーター2基を備えた利便性も魅力です。フロンティア代々木は代々木駅(A1番出口)の他に南新宿駅(出口)徒歩4分、北参道駅(1番出口)徒歩10分で利用も可能です。

