シオンビル 5-6F
物件概要
物件番号
192-00181-4物件名
シオンビル所在地
- 東京都新宿区歌舞伎町1-18-1
- アクセスマップ
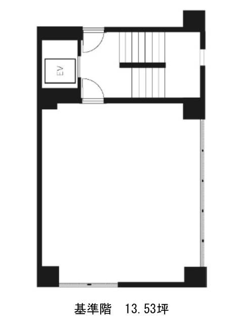
面積
27.06坪賃料(共益費含)
月額1,540,000円(56,910円/坪)
入居日
2025年12月保証金
14,000,032円礼金
2ケ月更新料
なし償却費
2ケ月竣工
1964年11月構造
RC規模
地上7階/地下2階トイレ
不明空調
エレベーター
有セキュリティ
駐車場
無耐震
旧耐震基準基準階天井高
空室延床面積
27.06坪情報更新日
2025/11/17シオンビルのテナント募集中区画
| 階数 | 面積 | 賃料(共益費含む) | 保証金 | 入居可能日 | 検討リスト | 詳細 |
|---|---|---|---|---|---|---|
| 5-6F | 27.06坪 | 1,540,000円/月(56,910円/坪) | 1,400万円 | 2025年12月 |
…新着物件
アクセス
シオンビルの物件情報
シオンビル(新宿区歌舞伎町)は西武新宿駅(南口)から徒歩3分の賃貸オフィスです。シオンビルは西武新宿駅(南口)の他に新宿駅(B12番出口)徒歩4分、新宿三丁目駅(B11番出口)徒歩5分で利用も可能です。

