NIAビル 2階
物件概要
物件番号
202-00014-30物件名
NIAビル所在地
- 東京都新宿区高田馬場3-3-3
- アクセスマップ
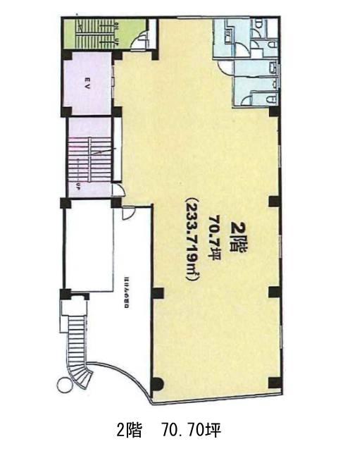
面積
70.70坪賃料(共益費含)
月額1,633,170円(23,100円/坪)
入居日
2026年3月下旬保証金
12,019,000円礼金
なし更新料
新1ケ月償却費
2ケ月竣工
1988年7月構造
RC規模
地上8階トイレ
男女別空調
個別空調エレベーター
有セキュリティ
駐車場
無耐震
新耐震基準基準階天井高
空室延床面積
70.70坪情報更新日
2026/01/09NIAビルのテナント募集中区画
| 階数 | 面積 | 賃料(共益費含む) | 保証金 | 入居可能日 | 検討リスト | 詳細 |
|---|---|---|---|---|---|---|
| 2 | 70.70坪 | 1,633,170円/月(23,100円/坪) | 1,201万円 | 2026年3月下旬 |
…新着物件
NIAビルのアクセス
NIAビルの物件情報
NIAビル(新宿区高田馬場)は高田馬場駅(1番出口)から徒歩2分の賃貸オフィスです。NIAビルは高田馬場駅(1番出口)の他に下落合駅(南口)徒歩13分、西早稲田駅(1番出口)徒歩13分で利用も可能です。

