新宿君嶋ビルのテナント募集中区画
| 階数 | 面積 | 賃料(共益費含む) | 保証金 | 入居可能日 | 検討リスト | 詳細 |
|---|---|---|---|---|---|---|
| 3 | 49.04坪 | 1,456,488円/月(29,700円/坪) | 1,353万円 | 即 | ||
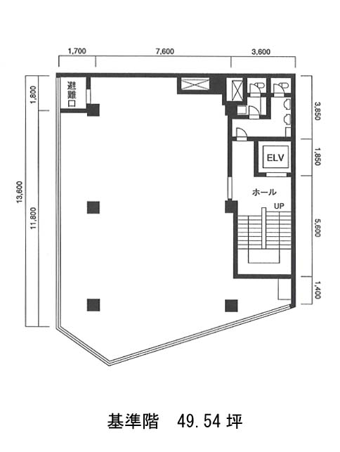
| 4 | 49.54坪 | 1,471,338円/月(29,700円/坪) | 1,367万円 | 即 |
…新着物件
アクセス
新宿君嶋ビルの物件情報
新宿君嶋ビル(新宿区新宿)は新宿三丁目駅(E10番出口)から徒歩2分の賃貸オフィスです。1974年竣工、地上8階地下1階建ての鉄骨鉄筋コンクリート造です。周辺にはコンビニや飲食店が多く立ち並んでいるので日常使いや食事の際にとても便利です。1階には有名携帯ショップも入っており目立ちやすいため視認性が高いのも嬉しい点です。主な設備面としてはOAフロア、男女トイレ別、個別空調、機械警備、エレベーター1基完備とかなり整った環境といえます。基準階面積は約49坪とコンパクトな造りのため管理が行き届きやすいでしょう。新宿君嶋ビルは新宿三丁目駅(E10番出口)の他に新宿駅(東南口)徒歩3分、新宿西口駅(出口1)徒歩4分で利用も可能です。

