シャンヴィラカテリーナ 3階
物件概要
物件番号
230-00120-20物件名
シャンヴィラカテリーナ所在地
- 東京都新宿区新宿1-16-9
- アクセスマップ
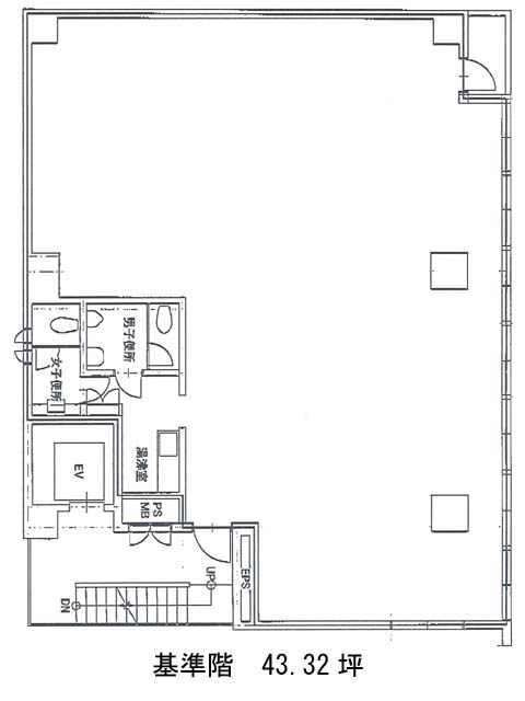
面積
43.32坪賃料(共益費含)
:応相談応相談
入居日
2026年3月上旬保証金
応相談礼金
1ケ月更新料
新1ケ月償却費
なし竣工
1987年3月構造
SRC規模
地上9階トイレ
男女別空調
個別空調エレベーター
有セキュリティ
有駐車場
無耐震
新耐震基準基準階天井高
空室延床面積
86.64坪情報更新日
2026/02/13シャンヴィラカテリーナのテナント募集中区画
| 階数 | 面積 | 賃料(共益費含む) | 保証金 | 入居可能日 | 検討リスト | 詳細 |
|---|---|---|---|---|---|---|
| 3 | 43.32坪 | 応相談(応相談) | 応相談 | 2026年3月上旬 | ||
| 4 | 43.32坪 | 応相談(応相談) | 応相談 | 2026年3月上旬 |
…新着物件
シャンヴィラカテリーナのアクセス
シャンヴィラカテリーナの物件情報
シャンヴィラカテリーナ(新宿区新宿)は新宿御苑前駅(2番出口)から徒歩4分の賃貸オフィスです。1987年竣工、地上9階建SRC造のビルです。新耐震基準を満たしています。前面通り側は窓面が多く、開放的な印象をしています。共用部は白を基調とした清潔感のある内装をしています。長方形のフロアは一箇所の共用部が集約され、動線が良いでしょう。EV1基・湯沸室・個別空調・バルコニー・貸室内の男女別トイレといった設備仕様がそろいます。基準階面積は約43坪。室内に出ている柱が少なく、レイアウトがしやすいでしょう。シャンヴィラカテリーナは新宿御苑前駅(2番出口)の他に新宿三丁目駅(C7番出口)徒歩6分、新宿駅(A8番出口)徒歩13分で利用も可能です。

