ACN新宿ビル 5階
物件概要
物件番号
230-00553-60物件名
ACN新宿ビル所在地
- 東京都新宿区新宿2-12-8
- アクセスマップ
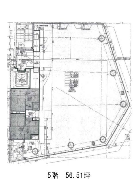
面積
56.51坪賃料(共益費含)
:応相談応相談
入居日
2026年5月上旬保証金
応相談礼金
なし更新料
新1ケ月償却費
1ケ月竣工
2009年4月構造
SRC規模
地上9階/地下1階トイレ
男女別空調
個別空調エレベーター
有セキュリティ
有駐車場
有耐震
新耐震基準基準階天井高
2700mm空室延床面積
113.02坪情報更新日
2026/02/20ACN新宿ビルのテナント募集中区画
| 階数 | 面積 | 賃料(共益費含む) | 保証金 | 入居可能日 | 検討リスト | 詳細 |
|---|---|---|---|---|---|---|
| 5 | 56.51坪 | 応相談(応相談) | 応相談 | 2026年5月上旬 | ||
| 9 | 56.51坪 | 応相談(応相談) | 応相談 | 2026年3月上旬 |
…新着物件
ACN新宿ビルのアクセス
ACN新宿ビルの物件情報
ACN新宿ビル(新宿区新宿)は新宿三丁目駅(C6番出口)から徒歩1分の賃貸オフィスです。地上9階地下1階建S造、2009年竣工のビルです。交差点に面している側が、ぐるりとガラス窓になっておりデザイン性の高い外観をしています。共用部は白ですっきりとした内装をしています。基準階面積は50坪台。貸室内は支柱が端にある為、レイアウトの自由度が高まるでしょう。設備仕様として、EV・機械警備・個別空調・OAフロア・男女別トイレがあります。2700㎜の天井高・大きなガラス窓で明るく開放感のある室内になるでしょう。ACN新宿ビルは新宿三丁目駅(C6番出口)の他に新宿御苑前駅(1番出口)徒歩6分、新宿駅(A8番出口)徒歩8分で利用も可能です。

