新宿東栄ビル 9階
物件概要
物件番号
230-00769-8物件名
新宿東栄ビル所在地
- 東京都新宿区新宿3-12-7
- アクセスマップ
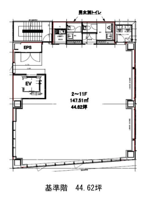
面積
44.62坪賃料(共益費含)
月額1,325,214円(29,700円/坪)
入居日
即保証金
10,708,800円礼金
なし更新料
新1ケ月償却費
1ケ月竣工
2025年10月構造
S造規模
地上12階トイレ
男女別空調
エレベーター
有セキュリティ
駐車場
無耐震
新耐震基準基準階天井高
2700mm空室延床面積
441.16坪情報更新日
2026/03/12新宿東栄ビルのテナント募集中区画
…新着物件
新宿東栄ビルのアクセス
新宿東栄ビルの物件情報
新宿東栄ビル(新宿区新宿)は新宿三丁目駅(C7番出口)から徒歩2分の賃貸オフィスです。靖国通り沿いの角地に位置する、地上12階建てのスマートなビル。すっきりとしたガラスファサードが印象的で、現代的な雰囲気を纏います。
基準階は約45坪とコンパクトながらも、柱が外周にまとめられており、使い勝手の良い間取り。天井高は2700mm、OAフロア仕様と、快適な執務環境が整えられています。また、1フロア1テナント仕様で水回りも専有部内に完備されており、占有性の高さもポイント。
周辺には百貨店や喫茶店、飲食店が多く点在しており、ビジネスにも来客対応にも便利な立地です。新宿東栄ビルは新宿三丁目駅(C7番出口)の他に新宿駅(B12番出口)徒歩7分、新宿御苑前駅(1番出口)徒歩8分で利用も可能です。

