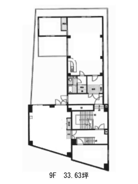
9階は現在募集がありません
イマス浜田ビル 9階
物件概要
イマス浜田ビルのテナント募集中区画
現在、空室がございません。
アクセス
イマス浜田ビルの物件情報
イマス浜田ビル(新宿区西新宿)は新宿西口駅(D5番出口)から徒歩5分の賃貸オフィスです。1973年6月竣工、淡いピンク色の外観が印象的で、地上8階建てのSRC構造です。基準階は約70坪、個別空調、OAフロアを採用、エレベーターは1基設置。ビルは24時間利用可能で、セキュリティは機械式警備となっているため安全です。1階は店舗、事務所、倉庫としてのご利用が可能ですのでご相談ください。徒歩圏内にはコンビニエンスストアや郵便局、カフェがございますので、利便性は高いでしょう。イマス浜田ビルは新宿西口駅(D5番出口)の他に大久保駅(南口)徒歩6分、西武新宿駅(北口)徒歩7分で利用も可能です。

