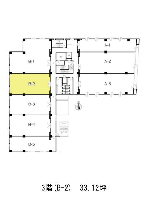
ハイネスロフティー 3階 B2
物件概要
ハイネスロフティーのテナント募集中区画
| 階数 | 面積 | 賃料(共益費含む) | 保証金 | 入居可能日 | 検討リスト | 詳細 |
|---|---|---|---|---|---|---|
| 2 | 48.04坪 | 応相談(応相談) | 応相談 | 2026年2月中旬 | ||
| 3 | 33.12坪 | 応相談(応相談) | 応相談 | 即 | ||
| 3 | 48.04坪 | 応相談(応相談) | 応相談 | 即 |
…新着物件
アクセス
ハイネスロフティーの物件情報
ハイネスロフティー(新宿区西新宿)は都庁前駅(A5番出口)から徒歩6分の賃貸オフィスです。新宿中央公園向かいにある、13階建てのビルです。赤レンガの壁が目を引く外観です。L字型のビルで、室内はワンフロアを分割して貸し出しています。間取りは複数あり、コンパクトな部屋は10.5坪ほど、広い部屋は72坪ほどあります。選択肢が広いので、ご希望の間取りとご予算で部屋を探すことができます。空き状況につきましては、お問い合わせください。トイレは男女別で共用部に設置されています。1階がコインパーキングになっているので、車での来客者に対応しやすいと思います。ハイネスロフティーは都庁前駅(A5番出口)の他に西新宿五丁目駅(A1番出口)徒歩9分、西新宿駅(E4番出口)徒歩9分で利用も可能です。

