ハイネスロフティー 2階 B1
物件概要
物件番号
237-00211-50物件名
ハイネスロフティー所在地
- 東京都新宿区西新宿4-32-4
- アクセスマップ
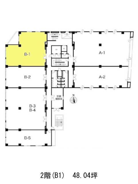
面積
48.04坪賃料(共益費含)
:応相談応相談
入居日
2026年2月中旬保証金
応相談礼金
なし更新料
新1ケ月償却費
なし竣工
1979年2月構造
SRC規模
地上13階トイレ
男女別空調
個別空調エレベーター
有セキュリティ
駐車場
有耐震
旧耐震基準基準階天井高
空室延床面積
129.20坪情報更新日
2026/01/14ハイネスロフティーのテナント募集中区画
| 階数 | 面積 | 賃料(共益費含む) | 保証金 | 入居可能日 | 検討リスト | 詳細 |
|---|---|---|---|---|---|---|
| 2 | 48.04坪 | 応相談(応相談) | 応相談 | 2026年2月中旬 | ||
| 2 | 33.12坪 | 応相談(応相談) | 応相談 | 即 | ||
| 3 | 48.04坪 | 応相談(応相談) | 応相談 | 即 |
…新着物件
アクセス
ハイネスロフティーの物件情報
ハイネスロフティー(新宿区西新宿)は都庁前駅(A5番出口)から徒歩6分の賃貸オフィスです。新宿中央公園向かいにある、13階建てのビルです。赤レンガの壁が目を引く外観です。L字型のビルで、室内はワンフロアを分割して貸し出しています。間取りは複数あり、コンパクトな部屋は10.5坪ほど、広い部屋は72坪ほどあります。選択肢が広いので、ご希望の間取りとご予算で部屋を探すことができます。空き状況につきましては、お問い合わせください。トイレは男女別で共用部に設置されています。1階がコインパーキングになっているので、車での来客者に対応しやすいと思います。ハイネスロフティーは都庁前駅(A5番出口)の他に西新宿五丁目駅(A1番出口)徒歩9分、西新宿駅(E4番出口)徒歩9分で利用も可能です。

