4階は現在募集がありません
1フロア募集区画あり

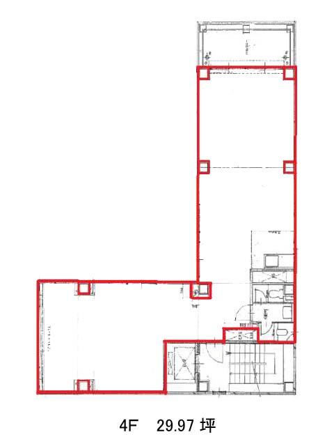
第2手塚ビル 4階

前の写真 外観①(メイン) 次の写真

物件概要

物件番号

237-00024-40

物件名

第2手塚ビル

所在地

面積

29.97坪

賃料(共益費含)


入居日

募集終了

保証金

礼金

更新料

償却費

竣工

1988年12月

構造

S造

規模

地上6階

トイレ

男女別

空調

個別空調

エレベーター

セキュリティ

駐車場

耐震

新耐震基準

基準階天井高

2300mm

空室延床面積

31.49坪

最寄駅

情報更新日

2025/10/14

第2手塚ビルのテナント募集中区画

階数 面積 賃料(共益費含む) 保証金 入居可能日 検討リスト 詳細
2 31.49坪 606,182円/月(19,250円/坪) 566万円
…新着物件

アクセス

第2手塚ビルの物件情報

第2手塚ビル(新宿区西新宿)は新宿西口駅(D5番出口)から徒歩5分の賃貸オフィスです。
第2手塚ビルは新宿西口駅(D5番出口)の他に大久保駅(南口)徒歩7分、新宿駅(B16番出口)徒歩7分で利用も可能です。

近隣のエリア・駅から探す

BESbswy