西新宿KNビル 2階


物件概要
物件番号
237-00307-10物件名
西新宿KNビル所在地
- 東京都新宿区西新宿7-22-27
- アクセスマップ
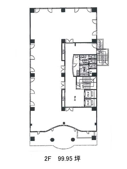
面積
99.95坪賃料(共益費含)
月額1,979,010円(19,800円/坪)
入居日
即保証金
17,271,360円礼金
なし更新料
なし償却費
10%竣工
1994年8月構造
SRC規模
地上7階/地下3階トイレ
男女別空調
個別空調エレベーター
有セキュリティ
有駐車場
無耐震
新耐震基準基準階天井高
2600mm空室延床面積
99.95坪情報更新日
2025/07/17西新宿KNビルのテナント募集中区画
階数 | 面積 | 賃料(共益費含む) | 保証金 | 入居可能日 | 検討リスト | 詳細 |
---|---|---|---|---|---|---|
2 | 99.95坪 | 1,979,010円/月(19,800円/坪) | 1,727万円 | 即 |
…新着物件
アクセス
西新宿KNビルの物件情報
西新宿KNビル(新宿区西新宿)は大久保駅(南口)から徒歩6分の賃貸オフィスです。
1994年8月竣工の10階建てのオフィスビルです。洗練されたデザインのエントランスホールにはエレベータが2基設置。基準階面積は約100坪、窓が大きいため、明るく見通しく、間取りはコの字型ですが無柱空間でOAフロアのためレイアウトはしやすいでしょう。また設備面でも個別空調、光ファイバー導入済み、機械式警備でビルは24時間利用可能です。また機械式の立体駐車場のご利用も可能なので、雨の日も濡れずに出勤可能です。
西新宿KNビルは大久保駅(南口)の他に西新宿駅(1番出口)徒歩7分、西武新宿駅(北口)徒歩8分で利用も可能です。