WISビル 7階新着
物件概要
物件番号
237-00462-80物件名
WISビル所在地
- 東京都新宿区西新宿4-29-6
- アクセスマップ
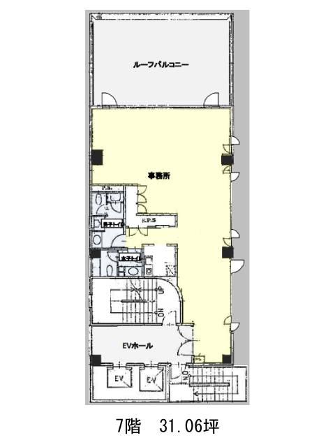
面積
31.06坪賃料(共益費含)
月額529,573円(17,050円/坪)
入居日
2026年7月上旬保証金
3,370,010円礼金
1ケ月更新料
新1ケ月償却費
1ケ月竣工
1992年6月構造
SRC規模
地上7階/地下2階トイレ
男女別空調
個別空調エレベーター
有セキュリティ
有駐車場
無耐震
新耐震基準基準階天井高
2500mm空室延床面積
31.06坪情報更新日
2026/02/26WISビルのテナント募集中区画
| 階数 | 面積 | 賃料(共益費含む) | 保証金 | 入居可能日 | 検討リスト | 詳細 |
|---|---|---|---|---|---|---|
| 7 | 31.06坪 | 529,573円/月(17,050円/坪) | 337万円 | 2026年7月上旬 |
…新着物件
WISビルのアクセス
WISビルの物件情報
WISビル(新宿区西新宿)は都庁前駅(A5番出口)から徒歩8分の賃貸オフィスです。1992年竣工、新耐震基準に適合している地上7階建てのビルです。ガラス面が多い外観は視認性が高く、丸みを帯びたフォルムが印象的です。貸室内の窓は採光性も良く、明るいオフィスとなるでしょう。フリーアクセスの床となっておりますので、各種配線を床下にスッキリと格納してデスク等の配置をすることができます。個別空調を完備。男女別のトイレ設置となっているのも嬉しいポイントです。上階にはバルコニーがあり、リフレッシュやちょっとした打ち合わせにも利用できるでしょう。WISビルは都庁前駅(A5番出口)の他に西新宿五丁目駅(出口)徒歩8分、西新宿駅(E4番出口)徒歩11分で利用も可能です。

