2階 225は現在募集がありません
3フロア募集区画あり

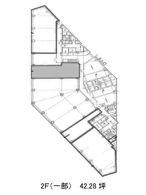
西新宿プライムスクエア 2階 225

前の写真 次の写真

物件概要

物件番号

237-00056-80

物件名

西新宿プライムスクエア

所在地

面積

42.28坪

賃料(共益費含)


入居日

募集終了

保証金

礼金

更新料

償却費

竣工

1988年11月

構造

S造

規模

地上16階/地下2階

トイレ

男女別

空調

セントラル

エレベーター

セキュリティ

駐車場

耐震

新耐震基準

基準階天井高

2470mm

空室延床面積

439.40坪

最寄駅

情報更新日

2026/02/16

西新宿プライムスクエアのテナント募集中区画

階数 面積 賃料(共益費含む) 保証金 入居可能日 検討リスト 詳細
13 219.70坪 応相談(応相談) 応相談 2026年4月上旬
13 135.52坪 応相談(応相談) 応相談 2026年4月上旬
15 84.18坪 応相談(応相談) 応相談 2026年6月上旬
…新着物件

西新宿プライムスクエアのアクセス

西新宿プライムスクエアの物件情報

西新宿プライムスクエア(新宿区西新宿)は西武新宿駅(北口)から徒歩4分の賃貸オフィスです。
1988年11月の竣工、地上16階建て、新耐震基準に適合しています。淡いグレーとガラスウォールで構成された重厚感ある外観に、スクエアのフォルムが印象的な大変視認性の高いオフィスビルです。ホテルライクなデザイン性の高いエントランスホール、高級感溢れるエレベーターホールにはエレベーターが8基設置され、朝の時間帯もそれほど待つことなく利用することが可能です。自走式・機械式の駐車場の他にも駐輪場もご利用も可能となっており、利便性は高いでしょう。徒歩圏内にはコンビニエンスストアや郵便局、カフェや飲食店が営業しています。
西新宿プライムスクエアは西武新宿駅(北口)の他に大久保駅(南口)徒歩5分、新宿西口駅(D5番出口)徒歩7分で利用も可能です。

近隣のエリア・駅から探す