新宿WEST COURTのテナント募集中区画
| 階数 | 面積 | 賃料(共益費含む) | 保証金 | 入居可能日 | 検討リスト | 詳細 |
|---|---|---|---|---|---|---|
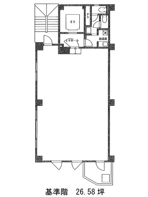
| 5 | 26.58坪 | 533,500円/月(20,072円/坪) | 246万円 | 2026年2月上旬 |
…新着物件
アクセス
新宿WEST COURTの物件情報
新宿WEST COURT(新宿区西新宿)は新宿西口駅(D5番出口)から徒歩4分の賃貸オフィスです。新宿WEST COURTは新宿西口駅(D5番出口)の他に新宿駅(B16番出口)徒歩6分、西武新宿駅(南口)徒歩6分で利用も可能です。

