新宿WEST COURT 5階
物件概要
物件番号
237-00624-40物件名
新宿WEST COURT所在地
- 東京都新宿区西新宿7-2-11
- アクセスマップ
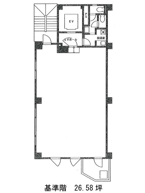
面積
26.58坪賃料(共益費含)
月額533,500円(20,072円/坪)
入居日
2026年2月上旬保証金
2,460,138円礼金
1ケ月更新料
なし償却費
なし竣工
1981年3月構造
S造規模
地上7階トイレ
男女別空調
個別空調エレベーター
有セキュリティ
有駐車場
有耐震
旧耐震基準基準階天井高
空室延床面積
26.58坪情報更新日
2025/11/26新宿WEST COURTのテナント募集中区画
| 階数 | 面積 | 賃料(共益費含む) | 保証金 | 入居可能日 | 検討リスト | 詳細 |
|---|---|---|---|---|---|---|
| 5 | 26.58坪 | 533,500円/月(20,072円/坪) | 246万円 | 2026年2月上旬 |
…新着物件
アクセス
新宿WEST COURTの物件情報
新宿WEST COURT(新宿区西新宿)は新宿西口駅(D5番出口)から徒歩4分の賃貸オフィスです。新宿WEST COURTは新宿西口駅(D5番出口)の他に新宿駅(B16番出口)徒歩6分、西武新宿駅(南口)徒歩6分で利用も可能です。

