7階は現在募集がありません
1フロア募集区画あり

新宿WEST COURT 7階

前の写真 次の写真

物件概要

物件番号

237-00624-60

物件名

新宿WEST COURT

所在地

面積

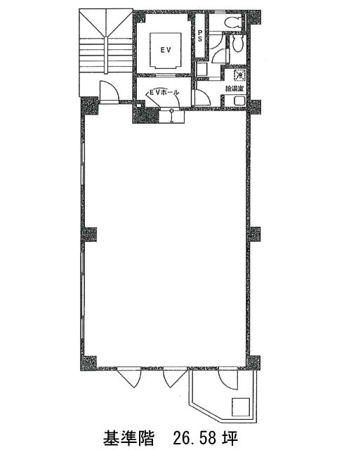
26.58坪

賃料(共益費含)


入居日

募集終了

保証金

礼金

更新料

償却費

竣工

1981年3月

構造

S造

規模

地上7階

トイレ

男女別

空調

個別空調

エレベーター

セキュリティ

駐車場

耐震

旧耐震基準

基準階天井高

空室延床面積

26.58坪

最寄駅

情報更新日

2025/11/26

新宿WEST COURTのテナント募集中区画

階数 面積 賃料(共益費含む) 保証金 入居可能日 検討リスト 詳細
5 26.58坪 533,500円/月(20,072円/坪) 246万円
…新着物件

新宿WEST COURTのアクセス

新宿WEST COURTの物件情報

新宿WEST COURT(新宿区西新宿)は新宿西口駅(D5番出口)から徒歩4分の賃貸オフィスです。
新宿WEST COURTは新宿西口駅(D5番出口)の他に新宿駅(B16番出口)徒歩6分、西武新宿駅(南口)徒歩6分で利用も可能です。

近隣のエリア・駅から探す