6階は現在募集がありません
宇津宮ビル 6階
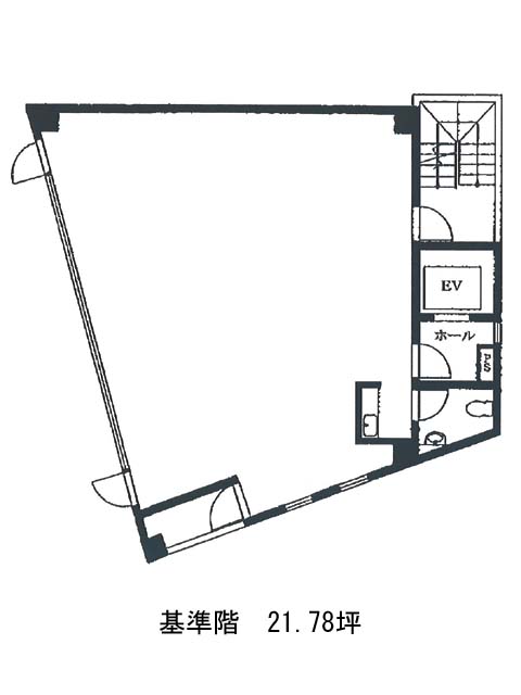
物件概要
宇津宮ビルのテナント募集中区画
現在、空室がございません。
宇津宮ビルのアクセス
宇津宮ビルの物件情報
宇津宮ビル(新宿区西新宿)は大久保駅(南口)から徒歩4分の賃貸オフィスです。宇津宮ビルは大久保駅(南口)の他に西武新宿駅(北口)徒歩5分、新宿西口駅(D5番出口)徒歩6分で利用も可能です。

