地下1階 Eは現在募集がありません
HUNDRED CIRCUS East Tower 地下1階 E
物件概要
物件番号
268-00126-10物件名
HUNDRED CIRCUS East Tower所在地
- 東京都新宿区百人町2-27-7
- アクセスマップ
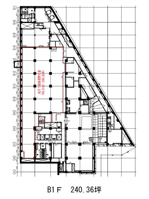
面積
240.36坪賃料(共益費含)
−入居日
募集終了保証金
−礼金
−更新料
−償却費
−竣工
1992年8月構造
SRC規模
地上22階/地下4階トイレ
男女別空調
個別空調エレベーター
有セキュリティ
駐車場
有耐震
新耐震基準基準階天井高
空室延床面積
−情報更新日
2025/10/08HUNDRED CIRCUS East Towerのテナント募集中区画
現在、空室がございません。
アクセス
HUNDRED CIRCUS East Towerの物件情報
HUNDRED CIRCUS East Tower(新宿区百人町)は大久保駅(北口)から徒歩3分の賃貸オフィスです。大久保エリアを代表するランドマーク的存在のハイグレードビルです。角地に位置し、そのスケールと洗練された外観デザインにより、エリア内でもひときわ目を引く存在感を放ちます。
貸室は小規模区画から大規模区画まで、時期により多彩なバリエーションで募集される点も魅力のひとつ。
設備面ではOAフロア、男女別トイレ、個別空調を完備し、ビル内には駐車場も設けられています。さらに、警備員と設備員が24時間体制で常駐しており、安心してご利用いただける点もポイント。貸室も24時間使用可能なため、幅広い業種に対応可能です。アクセスも良好で、通勤利便性も申し分ありません。HUNDRED CIRCUS East Towerは大久保駅(北口)の他に新大久保駅(出口)徒歩7分、西武新宿駅(北口)徒歩12分で利用も可能です。

