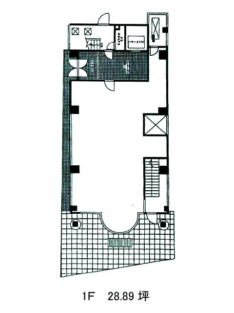
アルマビルのテナント募集中区画
| 階数 | 面積 | 賃料(共益費含む) | 保証金 | 入居可能日 | 検討リスト | 詳細 |
|---|---|---|---|---|---|---|
| 4 | 41.53坪 | 913,649円/月(22,000円/坪) | 211万円 | 即 |
…新着物件
アルマビルのアクセス
アルマビルの物件情報
アルマビル(新宿区北新宿)は大久保駅(南口)から徒歩4分の賃貸オフィスです。アルマビルは大久保駅(南口)の他に西武新宿駅(北口)徒歩7分、新大久保駅(出口)徒歩9分で利用も可能です。

